ASTM A182 F55球閥產品概述
A182 F55球閥是種承壓殼體和金屬內件由ASTM A182 Gr. F55或UNS S32760等鍛件或棒材加工而成,具有良好的耐氯化物點蝕和縫隙腐蝕性能,適用于以海水、鹵水及鹽水等為介質的管道上,以實現對管內物料流通、截斷或適度調節的浮動球或固定球球閥。該閥所使用的材質屬超級雙相不銹鋼,其優化了鐵素體-奧氏體比例(50%α相,50%γ相),該鋼一方面增加了Mo的含量,并加入了少量的W和Cu,從而提高了耐局部腐蝕的能力,另一方面,減少了C的百分比,從而改善了焊接性,它除擁有良好的抗Cl-和H2S應力腐蝕開裂外,還具有優異的耐氯化物點蝕和縫蝕性能,并且強度也很高,約為奧氏體不銹鋼的兩倍,因而,本產品被廣泛應用于石油輸送管道、氯堿工業、化肥生產、電站煙氣脫硫以及海水淡化等領域。
ASTM A182 F55球閥部件材料
| 序號 | 部件名稱 | 材料名稱 | |||
| 1 | 閥 體 | ASTM A182 F55 | UNS S32760 | 022Cr25Ni7Mo4WCuN | S27603 |
| 2 | 左右閥蓋 | ASTM A182 F55 | UNS S32760 | 022Cr25Ni7Mo4WCuN | S27603 |
| 3 | 閥 座 | R-PTFE、PTFE、TEFLON、NYLON、PPL、PEEK、DEVLON、ASTM A182 F55+HF | |||
| 4 | 球 體 | ASTM A182 F55 | UNS S32760 | 022Cr25Ni7Mo4WCuN | S27603 |
| 5 | 閥 桿 | ASTM A182 F55 | UNS S32760 | 022Cr25Ni7Mo4WCuN | S27603 |
| 6 | 填 料 | GRAPHITE、R-PTFE、PTFE、TEFLON、PCTFE | |||
| 7 | 螺 柱 | ASTM A193 B8M | ASTM A193 B8M | 06Cr17Ni12Mo2 | 06Cr17Ni12Mo2 |
| 8 | 螺 母 | ASTM A194 8M | ASTM A194 8M | 06Cr17Ni12Mo2 | 06Cr17Ni12Mo2 |
ASTM A182 F55球閥技術規范
| 公稱壓力Class | 600 | 900 | 1500 | 2500 |
| 殼體試驗壓力(MPa) | 16.5 | 22.5 | 39.2 | 65.2 |
| 高壓液體密封試驗壓力(MPa) | 12.1 | 16.5 | 28.6 | 47.75 |
| 低壓氣體密封試驗壓力(MPa) | 0.4~0.7 | 0.4~0.7 | 0.4~0.7 | 0.4~0.7 |
| 設計制造 | GB/T 12237、GB/T 21385、ASME B16.34、API 608、API 6D | |||
| 結構長度 | GB/T 12221、ASME B16.10、API 6D | |||
| 連接法蘭 | JB/T 79、GB/T 9113、HG/T 20592、HG/T 20615、SH/T 3406、ASME B16.5等 | |||
| 檢驗試驗 | GB/T 26480、JB/T 9092、API 598、API 6D | |||
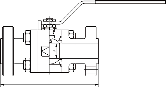
ASTM A182 F55球閥主要尺寸
| 公稱壓力 Class | 公稱尺寸 NPS | 外形尺寸/mm | 公稱壓力 Class | 公稱尺寸 NPS | 外形尺寸/mm | ||
| d | L | d | L | ||||
| 1500 | ? | 13 | 216 | 2500 | ? | 13 | 264 |
| ? | 19 | 229 | ? | 19 | 273 | ||
| 1 | 25 | 254 | 1 | 25 | 308 | ||
| 1 ? | 32 | 279 | 1 ? | 32 | 349 | ||
| 1 ? | 38 | 305 | 1 ? | 38 | 384 | ||
| 2 | 49 | 368 | 2 | 42 | 451 | ||
| 表中未列出的其他規格尺寸,請咨詢汗越閥門技術部! | |||||||
ASTM A182 F55球閥結構圖

我廠生產ASTM A182 GRADE F55浮動球閥、ASTM A182 GRADE F55固定球閥、ASTM A182 GRADE F55三通球閥、ASTM A182 GRADE F55四通球閥等。如果你需訂購其他不銹鋼球閥產品,咨詢時煩請注明規格型號,或告知結構型式、公稱壓力、公稱尺寸、閥體和內件材料、使用介質、工作溫度、端部連接方式等。

