美標電站截止閥產品概述
美標電站截止閥主要由閥體、閥座、閥瓣、閥桿、閥蓋、支架及傳動裝置等部件組成,閥桿下端與閥瓣相連,上端則與傳動裝置連接,閥桿螺母采用鑄鋁青銅,T形螺紋與閥桿配合傳遞力矩,其閥體中腔密封是靠介質的壓力作用在填料箱端面使止推環圈受壓密封,介質壓力越高,密封性能越好。該閥閥瓣與閥座密封面堆焊耐腐蝕耐沖刷的硬質合金材料,既增強其耐磨性和抗擦傷性,又保證在高溫時的硬度,延長了閥門的使用時間。本產品特適用于火力發電廠50MW到1000MW機組的主蒸汽、再熱蒸汽熱段(冷段)及高壓給水系統。
美標電站截止閥設計與制造采用ASME B16.34:2013標準,結構長度符合ASME B16.10:2017的規定,其通過手輪、傘齒輪或電動執行器等傳動裝置帶動閥桿作升降運動,實現閥門的開啟與關閉,在全開狀態時,閥瓣被徹底提起,并略高于出口通道的中線,使閥門的壓降小。該閥閥桿密封采用柔性石墨編織填料和柔性石墨環,其中首圈和底圈為柔性石墨編織填料,中間圈填料則為柔性石墨環,以防止石墨受壓后擠入閥體中腔。本產品應垂直安裝,閥體上所標注的箭頭為介質實際運行流向,在安裝現場必須留出操作和維修的空間。
美標電站截止閥部件材料
| 序號 | 部件名稱 | 材料名稱 | |||||
| 1 | 閥 體 | A216 WCB | A217 WC1 | A217 WC6 | A217 WC9 | A217 C12A | A351 CF8C |
| 2 | 閥 蓋 | A216 WCB | A217 WC1 | A217 WC6 | A217 WC9 | A217 C12A | A351 CF8C |
| 3 | 閥 桿 | A182 F6a CL.2 | A182 F11 | A182 F11 | A182 F22 | A182 F91 | A182 F347 |
| 4 | 閥 瓣 | A105 | A182 F11 | A182 F11 | A182 F22 | A182 F91 | A182 F347 |
| 5 | 閥 座 | A105 | A182 F11 | A182 F11 | A182 F22 | A182 F91 | A182 F347 |
| 6 | 填 料 | GRAPHITE | GRAPHITE | GRAPHITE | GRAPHITE | GRAPHITE | GRAPHITE |
| 7 | 雙頭螺栓 | A193 B7 | A193 B7 | A193 B16 | A193 B16 | A193 B16 | A193 B8 |
| 8 | 螺 母 | A194 2H | A194 2H | A194 16 | A194 16 | A194 16 | A194 8 |
美標電站截止閥性能規范
| 公稱壓力Class | 150 | 300 | 600 | 900 | 1500 | 2500 |
| 殼體水壓試驗壓力(MPa) | 3.0 | 7.5 | 16.5 | 22.5 | 39.2 | 65.2 |
| 上密封水壓試驗壓力(MPa) | 2.2 | 5.5 | 12.1 | 16.5 | 28.6 | 47.75 |
| 密封水壓試驗壓力(MPa) | 2.2 | 5.5 | 12.1 | 16.5 | 28.6 | 47.75 |
| 設計制造 | ASME B16.34:2013、BS 1873:1975 | |||||
| 結構長度 | ASME B16.10:2017、BS 2080:1989 | |||||
| 法蘭尺寸 | ASME B16.5:2017、ANSI B16.5:2013 | |||||
| 檢驗試驗 | API 598:2016、BS 6755-1:1986 | |||||
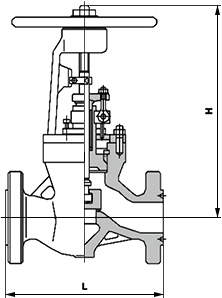
美標電站截止閥主要尺寸
| 公稱壓力 Class | 公稱尺寸 NPS | 外形尺寸/mm | 公稱壓力 Class | 公稱尺寸 NPS | 外形尺寸/mm | ||
| L | H | L | H | ||||
| 1500 | 2 ? | 419 | 460 | 2500 | 2 ? | 508 | 490 |
| 3 | 470 | 555 | 3 | 578 | 560 | ||
| 4 | 546 | 640 | 4 | 673 | 715 | ||
| 5 | 673 | 780 | 5 | 794 | 830 | ||
| 6 | 705 | 905 | 6 | 914 | 1070 | ||
| 8 | 832 | 1140 | 8 | 890 | 1300 | ||
| 表中未列出的其他規格參數,請咨詢汗越閥門技術部! | |||||||
美標電站截止閥結構圖

如果你需訂購我廠電站閥產品,咨詢時煩請說明公稱壓力、公稱尺寸、閥體材質、工作介質、使用溫度等,法蘭標準及法蘭密封面形式等,本產品的傳動裝置應采取保護措施,防止損傷及誤操作,阻止大氣中的灰塵、化學物質或潮濕氣體對閥桿螺紋及傳動裝置的侵蝕而使其啟閉失效。

